Cibes A4000/A4000W
長度單位:毫米(寬×深)
平臺尺寸:800×830 / 1000×830
完成尺寸:1160×880 / 1360×880
預留尺寸:1200×993 / 1400×993
Cibes A8000
長度單位:毫米(寬×深)
平臺尺寸:1405×1980 / 1105×2180 / 1405×2480
完成尺寸:1825×2080 / 1525×2280 / 1825×2580
預留尺寸:1865×2120 / 1565×2320 / 1865×2620
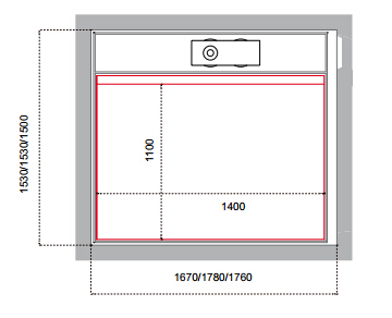
Cibes A5000(標1)
長度單位:毫米(寬×深)
平臺尺寸:1100×1600
完成尺寸:1460×1650
預留尺寸:1500×1760
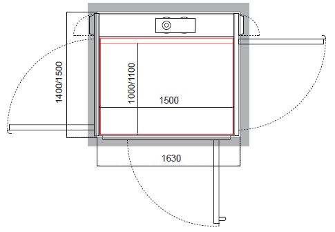
Cibes A5000(標2)
長度單位:毫米(寬×深)
平臺尺寸:1000×1500 / 1100×1500
完成尺寸:1360×1520 / 1460×1520
預留尺寸:1400×1630 / 1500×1630
Cibes A9000
長度單位:毫米(寬×深×高)
平臺尺寸:1100×1400×2200
完成尺寸:1735×1770 / 1735×2000
預留尺寸:1775×1810 / 1775×2040
Cibes A6000
長度單位:毫米(寬×深×高)
平臺尺寸:1100×1400×2200
完成尺寸:1460×1520 / 1460×1639
預留尺寸:A6000為1530×1670(同向門) 1530×1780(貫通門) A6000S為1500×1760
半標準尺寸開門示例
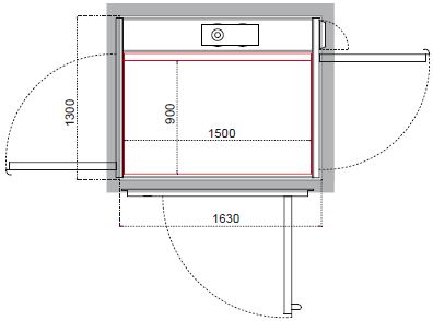
Cibes A5000(半標1)
長度單位:毫米(寬×深)
升降平臺尺寸:900×1500
完成尺寸:1260×1520
預留尺寸:1300×1630
Cibes A5000(半標2)
長度單位:毫米(寬×深)
升降平臺尺寸:800×1250 / 1000×1300 / 1100×1400
完成尺寸:1160×1270 / 1360×1320 / 1460×1420
預留尺寸:1200×1380 / 1400×1430 /1500×1530
以上預留尺寸是基于我們的配套井道給出的初步估計。實際的預留尺寸需要根據具體的產品要求和施工場地情況確定,詳情請聯系當地的分銷商。
看了又看:家用別墅電梯的最小尺寸

Swedish
Finnish
French
German
Polish
Spanish
Norwegian
English UK
Russian
English US
Austria
English MY
China
India
Indonesia
Philippines
Thailand
Vietnam
ME-NA